Does living small have to be the opposite of living large?
Kumpulan referensi project untuk micro-housing.
—A thread.
Kumpulan referensi project untuk micro-housing.
—A thread.
1. Flat 27A by Design Eight Five Two (DEFT)
Berlokasi di Hong Kong, apartemen dengan luas 51 m2 ini memanfaatkan adjustable furniture dan sliding walls untuk memaksimalkan ruang yang ada dalam apartemen tersebut.
Berlokasi di Hong Kong, apartemen dengan luas 51 m2 ini memanfaatkan adjustable furniture dan sliding walls untuk memaksimalkan ruang yang ada dalam apartemen tersebut.
Permintaan client adalah untuk menciptakan ruang yang fleksibel, dimana hunian ini dapat digunakan sebagai ‘single space’ atau dapat dibagi menjadi beberapa ruang, apabila ada beberapa rekan yang sedang berkunjung.
Pada living area, terdapat custom-built meja makan yang dapat dipindahkan sesuai kebutuhan. Jadi, jika tidak ada yang sedang berkunjung, meja akan diletakkan di sekitar shelves, dan dapat dipindahkan apabila ada yang berkunjung. Again, untuk menghindari ‘cramped space’.
Bedroom area hadir dengan lounge dan ruang untuk menonton tv. Yang menarik adalah area ini sebenarnya dipisahkan oleh sliding wall. Jadi sliding wall tersebut hadir untuk menciptakan ruang yang lebih private pada kamar tidur. Bisa dibuka-tutup sesuai kebutuhan.
Berikut adalah denah untuk Flat 27A. Dapat dilihat, layout hunian cukup simple dan juga fleksibel. Bagian di samping bedroom adalah hidden storage pribadi sang owner. Kemudian juga ada area dapur dan kamar mandi.
Ah, siapa yang notice ada lubang kecil di area living? Yup, pop-hole tersebut adalah tempat tinggal untuk kucingnya sang owner. Selain tempat istirahat juga ada toilet untuk si kucing. Yhaa, gemash banget kaaan
2. My Home by Containerwerk
Sebuah ‘komplek’ micro-apartments di German dengan luas 26 m2 untuk masing2 unitnya. Setiap unitnya dilengkapi oleh kamar tidur, kitchenette, ruang makan, kamar mandi, dan juga living room.
Sebuah ‘komplek’ micro-apartments di German dengan luas 26 m2 untuk masing2 unitnya. Setiap unitnya dilengkapi oleh kamar tidur, kitchenette, ruang makan, kamar mandi, dan juga living room.
Dengan luas yang tidak besar, adanya jendela dengan bukaan yang besar dan juga konsep open plan tanpa sekat di dalamnya memainkan peran penting pada hunian.
My Home ditargetkan untuk menjadi alternatif tempat singgah sementara bagi para travellers dan turis.
My Home ditargetkan untuk menjadi alternatif tempat singgah sementara bagi para travellers dan turis.
3. Alley Cat by SHED Architecture & Design
Memiliki kebiasaan travel, sang client berinisiatif untuk membangun ‘compact home base’ di area backyard rumah untuk mereka dan menyewakan main residence mereka. Sang client menginginkan rumah dengan low maintenance dengan PV panels.
Memiliki kebiasaan travel, sang client berinisiatif untuk membangun ‘compact home base’ di area backyard rumah untuk mereka dan menyewakan main residence mereka. Sang client menginginkan rumah dengan low maintenance dengan PV panels.
Hasilnya, didesain lah sebuah hunian dua lantai dengan luas total 74 m2.
Di lantai dasar terdapat living room, dapur, kamar mandi, dan kamar tidur. Sedangkan di lantai atas terdapat loft untuk area bersantai.
Di lantai dasar terdapat living room, dapur, kamar mandi, dan kamar tidur. Sedangkan di lantai atas terdapat loft untuk area bersantai.
Pada main living area terdapat sliding glass door yang dapat membawa pencahayaan alami masuk ke dalam ruang dan juga menyatukan ruang dengan patio yang ada di area luar.
Terdapat juga skylight untuk menambah pencahayaan dan untuk stargazing saat malam hari.
Terdapat juga skylight untuk menambah pencahayaan dan untuk stargazing saat malam hari.
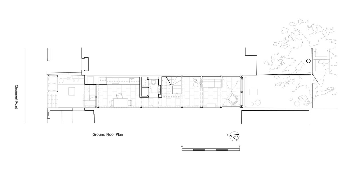
4. Slot House by Sandy Rendel Architects
Hunian yang berlokasi di London ini memiliki lebar hanya 2.8 meter. Hunian dua lantai ini didesain sedemikian rupa agar menghasilkan ruang yang nyaman untuk ditinggali, walaupun dengan area yang sempit.
Hunian yang berlokasi di London ini memiliki lebar hanya 2.8 meter. Hunian dua lantai ini didesain sedemikian rupa agar menghasilkan ruang yang nyaman untuk ditinggali, walaupun dengan area yang sempit.
Untuk memaksimalkan ruang, hunian ini dibangun dengan menggunakan prefabricated, lightweight steel frame. Hunian ini juga didesain dengan menggunakan spruce plywood untuk dinding dan terrazzo untuk lantai pada hunian.
Lantai dasar terdapat dapur dan area makan, kemudian akses tangga ke lantai atas, dan lounge di sisi belakang.
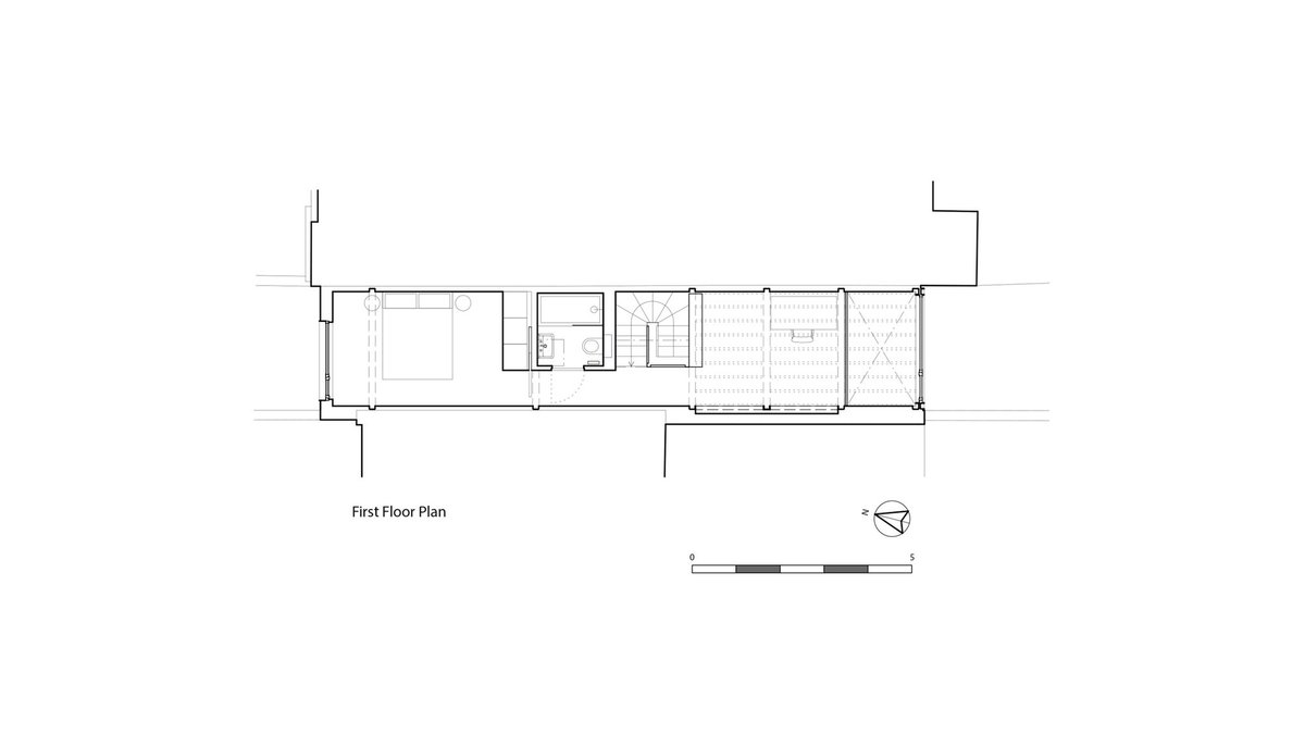
Sedangkan di lantai atas terdapat master bedroom dan study room.
Sedangkan di lantai atas terdapat master bedroom dan study room.
Untuk memaksimalkan pencahayaan dan meningkatkan sense of space, maka layout pada hunian ‘dibuka’ semaksimal mungkin. Adanya jendela besar dan skylight pada area tangga juga memiliki peran penting untuk membawa cahaya masuk pada ruangan.
Pada dasarnya, living small tetap segmented, tergantung preference masing2 individu. Dan lagi, utk menciptakan maximum of living quality butuh effort yang besar, salah satunya clever design dan budget.
Kalo kata Mies van der Rohe: “Less is more.”
Sumber: http://dezeen.com
Kalo kata Mies van der Rohe: “Less is more.”
Sumber: http://dezeen.com
Read on Twitter